Robinienholz ist unter den europäischen Hölzern das widerstandsfähigste. Es kann ohne Imprägnierung im Außenbereich eingesetzt werden. Durch Witterungseinflüsse wird die Oberfläche silberfarbig. Eine stärkere Rissbildung, gegenüber anderen Holzarten, ist normal.
Eigenschaften:
Konstruktion aus Robinie - sehr haltbares Akazienholz mit einem Durchmesser von ~ 18 cm ohne scharfe Kanten, witterungsbeständig
Schrauben mit Kunststoffkappen und/oder Schrauben aus rostfreiem Stahl
zertifiziert nach DIN/EN-1176
Technische Daten:
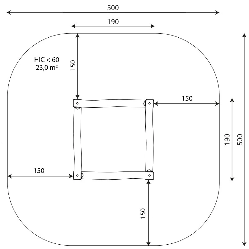
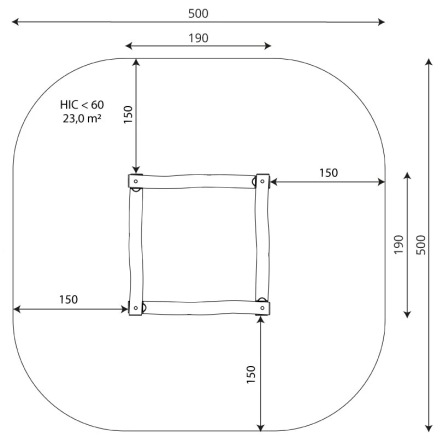
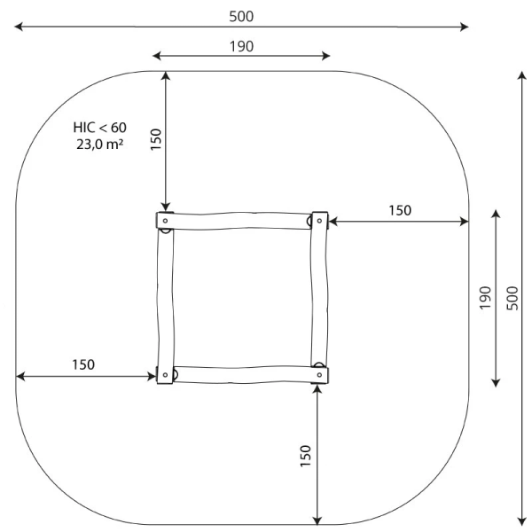
Länge: 190 cm
Breite: 190 cm
Gesamthöhe: 19 cm
Altersgruppe: ab 1 Jahre
Anzahl der Benutzer: 5 Kinder
Sicherheitsbereich: 23 m2
Höhe des freien Falls: <60 cm
Entsprechend der Norm EN 1176-1:2017
Gewicht des schwersten Teils: 79 kg
Verfügbarkeit von Ersatzteilen: Ja
Installationszeit: 2 h
Versandkosten: 95 € zzgl. MwSt.
Hersteller Informationen
vinci play
ul. Seminaryjna 9
99-400 Łowicz Poland
biuro@vinci-play.com